Leonce und Lena, und ein Haus. Ein transdisziplinärer Versuch

Pia Pollak

Betreuung:
Univ.-Prof. Dipl.-Ing. Dr.sc.ETH MArch
Alex Lehnerer
Institut für Raumgestaltung
2025

Link zur Diplomarbeit

 

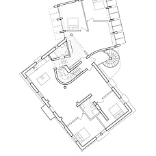
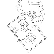
Dieses Projekt versucht sich an der architektonischen Interpretation eines Theaterstückes. Es untersucht, wie Geschriebenes in eine architektonische Form übersetzt werden kann; wie sich die Wendungen des Stückes, die Charaktere, die Entwicklungen auf das Gebaute auswirken, Raumgefüge, Wegeführung und Materialität beeinflussen. Georg Büchners Theaterstück Leonce und Lena und ein Leerstand in der Uhlandgasse 6 in Graz bilden die Ausgangslage.

Es entsteht eine Arbeit in zwei Teilen: Der erste zeigt die atmosphärische Verstrickung zwischen Text und Entwurf, stellt räumlichen Situationen ausgewählte Textpassagen gegenüber und führt so durch das Vorhaben und die Geschichte. Der zweite Teil widmet sich einer analytischen Vorstellung des architektonischen Entwurfes und zeigt die Überlegungen und konkreten Interpretationen hinter der Übersetzung. Eine vorgeschriebene Reihenfolge bei der Betrachtung der zwei Teile gibt es nicht. Das entworfene Wohnhaus bietet Bewohner*innen, neben den Qualitäten des Theaterstücks, Rückzugsorte für die verschiedensten Lebenssituationen.