|
Nikolas Keuschnig
Betreuung:
Univ.-Prof. Dipl.-Ing. Architekt
Hans Gangoly
Institut für Gebäudelehre
2024
Link zur Diplomarbeit
|
|
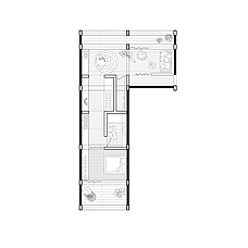
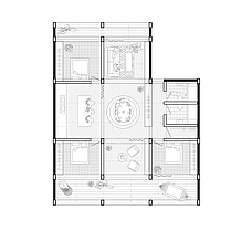
Diese Masterarbeit beschäftigt sich mit einer mehrdimensionalen Betrachtung von Dichte, Gemeinschaft und Nutzung im Kontext der Durchmischung. Anhand einer abstrakten Nachverdichtung und durch Abbildung des gesamten Entwurfsprozesses erforscht sie, wie Architektur als Bindeglied zwischen gesellschaftlichen, kulturellen, sozialen und ökologischen Aspekten fungieren kann. Entscheidungsprozess und Erkenntnisse verdeutlichen die innovative Anpassung und die vielfältigen Möglichkeiten der Architektur in den referenzierten Themenfeldern.
|