Museumsplatz Haid. Museum 121 & Kulturzentrum

Manuel Breksler

Betreuung:
Dipl.-Des. BDA Univ.-Prof.
Wolfgang Tom Kaden
Institut für Architekturtechnologie | Architektur und Holzbau
2025

Link zur Diplomarbeit

 

Der Museumsbau stellt als wichtiger öffentlicher Gebäudetypus eine besondere Herausforderung in der Planung dar. Die Vielschichtigkeit der Nutzung, der Funktionen und der architektonischen wie organisatorischen Gebäudeanforderungen multipliziert diese Komplexität nochmals.

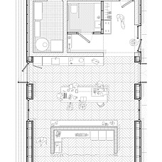
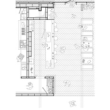
Ziel dieser Masterarbeit ist deshalb die Erfassung und Analyse grundlegender museologischer und museografischer Aspekte, um einen Überblick über die Funktionen und Planungsanforderungen zu geben. Auf Basis der dadurch gewonnenen Informationen wird anhand eines theoretischen Szenarios ein Stadtgeschichtemuseum mit dazugehörigem Besucher*innenzentrum entworfen. Ersteres bietet die Möglichkeit, die geschichtliche Präsenz der, für die oberösterreichische Stadtgemeinde Ansfelden bedeutenden, Displaced-Person-Siedlung 121 Haid aufzuzeigen.

Die Arbeit setzt sich aus vier Haupteilen zusammen, welche sich jeweils einem speziellen Thema widmen. Im ersten Teil werden die museologischen/museumstheoretischen Fragen wie Definition, Funktionen und historische Entwicklung von Museen beleuchtet. Im zweiten Abschnitt findet eine Aufschlüsselung von museografischen/museumsplanerischen Komponenten statt. Hier werden Planungsschritte- und problematiken, grundlegende Raum-, Weg- und Präsentationskonzepte, architektonische Bestandteile von Ausstellungsräumen und spezifische Gebäudeanforderungen näher erörtert. Im dritten Teil wird eine Analyse des Ortes und des Planungsgrundstückes bereitgestellt und der vierte Abschnitt widmet sich dem Entwurfsprojekt.