[Bau]Strukturen erkennen, pflegen, nutzen. Ein Kindergarten im Pfarrhof

Katharina Thek

Betreuung:
Ass.Prof. Dipl.-Ing. Dr.techn.
Eva Sollgruber
Institut für Gebäudelehre
2025

Link zur Diplomarbeit

 

Der Pfarrhof der Pfarre Feldkirchen an der Donau bildet als historischer Vierkanter nach wie vor einen zentralen Ort des kirchlichen und sozialen Lebens. Trotz regelmäßiger Nutzung durch diverse Gruppen, darunter ein Kindergarten, Chöre, Jungschar, Ministrant*innen, Sprachkurse und Senior*innengruppen, weist das Gebäude gravierende funktionale und räumliche Defizite auf. Die Pflege und der Erhalt des großen Bestandes stellen Stift und Pfarre vor zunehmende Herausforderungen. Bereits mehrfach wurde versucht, den Pfarrhof im Sinne einer erweiterten Gemeindenutzung zu transformieren. Die bisherigen Entwürfe berücksichtigen jedoch zeitgemäße pädagogische Konzepte und das vorgeschriebene Raumprogramm kaum.

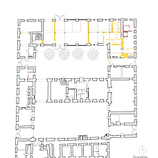
„[Bau]Strukturen erkennen, pflegen, nutzen“ stellt eine Alternative zur Kindergartenerweiterung um zwei Gruppenräume inklusive Turn- und Speisesaal im Pfarrhof vor. Den theoretischen Ausgangspunkt bildet die Auseinandersetzung mit dem architektonischen Sorgetragen, also dem verantwortungsvollen Umgang mit dem Bestand. Die Geschichte des Kindergartens verdeutlicht die Analogie zwischen der Pflege in der Architektur und der Pflege in der Elementarpädagogik. Um dem pädagogischen Konzept gerecht zu werden, wird dieses ebenfalls erläutert.

Im Zentrum des Entwurfs steht ein raumbildendes Einbaumöbel, das den ehemaligen Stadel in einen wohnlichen Raum für die Kinder und das Personal transformiert. Neben dieser konkreten Intervention wird der Pfarrhof in seiner Gesamtheit als Potenzialfläche für gemeinschaftliche und generationenübergreifende Nutzung begriffen. So wird wieder Platz für ein Jugendzentrum und ein Künstler*innen-Atelier geschaffen, die auf Grund des Umzuges einer Sparkasse weichen mussten. Ziel ist es, durch den sensiblen architektonischen Umgang mit der bestehenden Struktur zukunftsfähige, transformative Räume für das soziale Leben der Gemeinde zu schaffen.