How on Earth? Potenziale des Lehmbaus für klima- und materialgerechte mehrgeschossige Wohnbauten im Vergleich zu konventionellen Bauweisen

Ingo Candussi

Betreuung:
Assoc.Prof. Dipl.-Ing. Dr.nat.techn.
Andreas Trummer
Institut für Tragwerksentwurf


Mitbetreuung:
Dipl.-Ing.
Iveta Wayd
2025

Link zur Diplomarbeit

 

Gerade im Wohnbau scheinen die Klimaziele in weiter Ferne zu liegen. Baurechtliche und finanzielle Vorgaben sowie bereits sehr effizient gestaltete Wohnungsgrundrisse beschränken den Handlungsspielraum bei der Herstellung und Gestaltung von Wohnraum in Bezug auf baubiologische und ökologische Aspekte. Große, mehrgeschossige Wohnbauten werden nach wie vor überwiegend mit ressourcen- und energieintensiven Baustoffen errichtet. Dennoch bietet der Wohnbau, der eine zentrale Schnittstelle zwischen Gesellschaft und Architektur darstellt, ein großes Potenzial für umweltbewusstes Handeln in der breiten Bevölkerung.

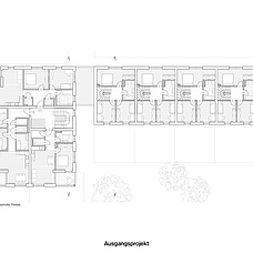
Eine Möglichkeit, diesen Herausforderungen zu begegnen, ist der materialgerechte Einsatz von Lehm als Baustoff. Der Rohstoff ist je nach Ausführung schalldämmend, feuerhemmend und diffusionsoffen. Er überzeugt durch seine lokale Verfügbarkeit, die einfache Verarbeitung und den problemlosen Rückbau. Ziel dieser Arbeit ist es, die Transformation eines konventionellen Ziegelbaus in eine Lehmbauweise anhand eines sich in Planung befindlichen Wohnbauprojekts systematisch zu analysieren. Dazu wird zunächst der aktuelle Wohnbau in der Steiermark hinsichtlich baurechtlicher und architektonischer Aspekte untersucht. Darauf folgt eine umfassende Darstellung der materialtechnischen Eigenschaften, bauphysikalischen Qualitäten sowie normativen Rahmenbedingungen des Baustoffs Lehm.

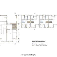
Im Kern der Arbeit wird das konkrete Bauprojekt in eine tragende Lehmbauweise überführt und hinsichtlich Flächen, Baukosten und CO2-Bilanz (Global Warming Potential) quantitativ bewertet. Die Ergebnisse zeigen, dass der Einsatz von Lehmbauweisen unter bestimmten Bedingungen, insbesondere bei niedrigen Gebäudehöhen und kompakten Grundrissen, ohne erhebliche Einschränkungen möglich ist. Daraus können sich ökologische und unter Umständen auch finanzielle Vorteile ergeben. Aktuell bestehen jedoch rechtliche und wirtschaftliche Hemmnisse, die beispielsweise durch fehlende Normierung, erhöhte Schutzanforderungen gegen Feuchtigkeit und fehlendes Fachwissen bedingt sind. Dennoch kann Lehm unter Einhaltung der in Deutschland bereits gültigen Normen ein praktikabler Baustoff für mehrgeschossige Wohnbauten sein kann.