|
Fabian Steinberger
Betreuung:
Univ.-Prof. Dipl.-Ing. Dr.sc.ETH MArch
Alex Lehnerer
Institut für Raumgestaltung
2025
Link zur Diplomarbeit
|
|
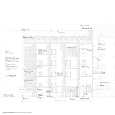
Die vorliegende Arbeit untersucht die konzeptionelle Entwicklung eines architektonischen Entwurfs basierend auf statistisch erhobenen Durchschnittswerten. 59 Grazer Gebäude liefern die Daten, deren Durchschnitte den Rahmen des Entwurfs. Aus Überregulierung wächst ein Gestaltungsprinzip. Ziel ist die Formulierung eines Gebäudes, das sich durch eine wertungsfreie, aber wertebasierte Fügung einzelner Durchschnittswerte definiert. Das Projekt zeigt auf, wo aus den Engen eines vorgegebenen Rahmens statistischer Zahlenwerte – deren Einhaltung die methodische Prämisse dieses Entwurfs darstellt – architektonisches Potenzial formuliert werden kann.
Der Erarbeitungsprozess stützt sich auf errechnete Durchschnittswerte von zufällig ausgewählten Wohngebäuden im Stadtraum Graz. Die Werte umfassen gebäude- und wohnungsspezifische Daten sowie ergänzende Informationen zu Möblierung und Fassade. Der Durchschnitt bestimmt jegliche Gebäudeparameter: Höhe, Breite, Geschossanzahl sowie Wohnfläche oder Türanzahl pro Person, um nur einige Beispiele zu nennen. Der in diesem Rahmen entwickelte Entwurf ist keine zufällige Aneinanderreihung statistischer Werte, sondern Ergebnis einer präzisen und bewussten Interpretation im Einklang mit den Durchschnittswerten. Er hält sich dabei allerdings weder an die durchschnittliche Anzahl verbauter Schrauben, noch geht er auf die durchschnittliche Menge an Dachziegeln ein. Ist das Projekt also qualifiziert genug, den Titel „Ein durchschnittliches Haus“ zu tragen? Passender wäre wohl eher: „Das Haus, das dem Durchschnittshaus am nächsten kommt.“
Ungeachtet all dessen unterwirft sich der Entwurf dem Durchschnitt und versucht, sich dem theoretischen Konstrukt des Durchschnittshauses in möglichst vielen Aspekten anzunähern. Das Resultat kann als architektonischer Beitrag zur Schaffung eines Vergleichswertes verstanden werden – oder als ein Projekt über die Abnormalität des Durchschnitts, das dem Durchschnitt(shaus) einen Körper gibt.
|