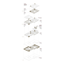
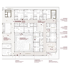
Unser Ziel war es, ein Krankenhaus zu gestalten, das mehr ist als ein Ort der Behandlung – ein Raum des Wohlbefindens, der Heilung und Begegnung. Ein zentrales Element unseres Entwurfs ist die Verbindung von Innen- und Außenraum. Durch roße Verglasungen, Atrien und Nischen verschwimmen die Grenzen zwischen Innen und Außen. Das Konzept der Rundgänge ist zentral für das Gebäude. Sie ermöglichen eine selbstbestimmte Bewegung, sowohl durch Innenwege als auch auf den Laubengängen. Diese Offenheit lädt Patient*innen ein, sich frei im Gebäude zu bewegen und ihren Aufenthalt über das Zimmer hinaus zu gestalten – immer mit der Möglichkeit, sich zu begegnen oder zurückzuziehen, je nach persönlichem Bedürfnis. Verglasungen am Ende der Gänge verstärken den ständigen Blick ins Freie und ermöglichen eine dauerhafte
Verbindung zur Natur. Dieser Ausblick trägt zur positiven Atmosphäre des Gebäudes bei und unterstützt die Erholung. Das Gebäude ist horizontal ausgerichtet, mit zwei Atrien und einem offenen Treppenauge als vertikale Akzente. Es besteht aus einem dreigeschossigen linken Teil und einem viergeschossigen rechten Teil, die durch eine zentrale Eingangshalle miteinander verbunden sind. Die Höhenentwicklung ist abgestuft, sodass das Gebäude in Richtung des Krankenhausareals niedriger wird, um sich harmonisch in die Umgebung einzufügen. Der Eingangsbereich ist barrierefrei und bietet durch die gewählte Lage eine gute Anbindung an das bestehende Gelände.
Wintersemester 2024/25
Masterstudio
Brugger, Gossak-Kowalski