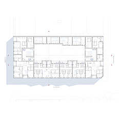
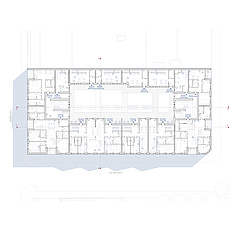
Das Thema leistbarer Wohnraum und Nachverdichtung in der Stadt wird immer bedeutsamer. Clusterwohnungen bieten hierfür einen spannenden Ansatz. Sie fördern nicht nur Begegnungen undden Austausch zwischen Bewohnern, sondern ermöglichen eine verdichtete Flächennutzung proKopf. Da das gemeinschaftliche Wohnen nicht auf alle Personengruppen ansprechend wirkt, wurden zusätzlich Single bzw. Pärchenwohnungen als Atelierwohnung entworfen. Der Innenhof wurde als Begegnungszone entworfen, welche das BFI im Bestandsgebäude mit dem Wohnen in der Aufstockung verbindet.
Wintersemester 2023/24
Masterstudio
Kaden