AB DURCH DIE ECKE

Christoph Schickermüller, David Rindler

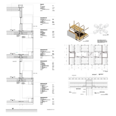
Wir legten eine freie Fläche an, zumal wir gesehn habe, dass in unmittelbarer Nähe wenig Freiflächen existieren. Unser Gedanke war es eine Markthalle zu schaffen, die für die Öffentlichkeit zugänglich sein soll. Durch diesen Eingriff versuchten wir nicht nur den Bauplatz aufzuwerten, sonder generell für das Gebiet einen Mehrwert zu erzielen und einen Ort der Zusammenkunft zu kreieren. Über der Markthalle zogen wir eine Ebene ein, die als Innenhof dient und auf der wir die Aufstockung vollzogen. Diese Ebene ist auch öffentlch zugänglich, da jedoch die vertikale Erschließung ein Hinderniss darstellt, ist sie halbprivat. Durch die Aufstockung nahmen wir die - für Berlin typische - Blockrandbebauung auf. Um jedoch das sehr massive „L“, das wir als Bauvolumen wählten, aufzulockern bildeten wir daraus ein dreihüftiges Gebäude, wobei der mittlere Bereich als Gemeinschaftsfläche und Erschließung dienen soll. Die Atrien sollen vor allem auch als Lichtquelle für die Wohnungen funktionieren. Um Gemeinschaftsflächen für alle Geschosse anzubringen und gleichzeitig Licht bis in die untersten Geschosse zu bringen benutzten wir Podeste, die durch ihre Positionierung Lichtaugen schaffen.

Wintersemester 18/19
Projektübung
Kaden, Gossak-Kowalski

zur Aufgabenstellung