WOHNEN WERKELN WICKELN

Julian Küsters, Andreas Nätscher, Melina Sehn

Raumbildender Auftakt und urbane Identität

Im Westen des neuen Quartiers der Generationen formuliert ein Ensemble aus einem viergeschossigen Werkstatthaus und einer zweigeschossigen Kindertagesstätte einen prägnanten städtebaulichen Auftakt. Zwischen ihnen spannt sich ein gemeinschaftlich genutzter Platzraum auf, welcher als sozialer Vermittler, Knotenpunkt und adressbildendes Zentrum fungiert. Das Ensemble verwebt pädagogische, produktive und wohnfunktionale Programme zu einer architektonischen Dichte, die dem Leitbild der „produktiven Stadtregion“ der IBA’27 konkrete Gestalt verleiht.

Tragwerk als architektonisches Argument, Ressourcenlogik und Reversibilität

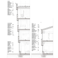
Beide Gebäude folgen den Prinzipien eines zirkulären, sortenreinen Holzbaus mit einem hohen Vorfertigungsgrad. Modulare Rasterung, materialgerechte Details und mechanisch lösbare Verbindungen sowie Knotenpunkte garantieren nicht nur eine ökonomisch und ökologisch optimierte Errichtung, sondern sichern auch langfristige Adaptierbarkeit und Rückbaubarkeit. Der Einsatz leimbasierter Bauteile wird reduziert und nur pointiert gewählt sowie Bauteilfügungen weitgehend mechanisch und sortenrein konzipiert.Die Tragwerke sind auf Abbrand bemessen und dimensioniert und werden durch funktionale, verdübelte Brettstapeldecken ergänzt. Die Dachflächen sind energetisch aktiviert. Bifaziale Photovoltaikmodule tragen zur Eigenstromversorgung bei. Fassaden sind als vorgehängte, hinterlüftete Systeme ausgeführt: konstruktiv klar, thermisch leistungsfähig und gestalterisch präzise. Beide Gebäude verstehen sich als reversible Rohstoffspeicher und leisten damit einen konkreten Beitrag zum ressourcenschonenden Bauen im Sinne des „Urban Mining“.

Architektur als soziale und materielle Struktur

Das Ensemble demonstriert eine architektonische und räumliche Offenheit, funktionale Vielfalt sowie konstruktiven Fokus. In der Überlagerung von Bildung, Produktion und Wohnen entsteht ein kraftvoller, wandelbarer Stadtkörper, der nicht nur Raum bereitstellt, sondern in seiner Ausführung eine Haltung formuliert.Die Konstruktion ist hier nicht nur Mittel zum Zweck, sondern Ausdruck eines architektonischen Verständnisses, welches Struktur, Atmosphäre und Ressourcenschonung als integralen Entwurfskanon denkt.

Sommersemester 2025
Masterstudio
Kaden

zur Aufgabenstellung