VIELFALT (L)EBEN

Robert Anagnostopoulos, Viktoriia Mikhaleva, Victoria Michaela Pirker

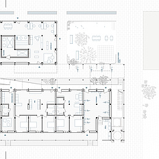
Das Konzept unseres Entwurfs baut auf Vielfalt, Suffizienz und die Eingliederung in die Nachbarschaft des Quartiers auf. Zwei langgestreckte und 11 m breite Volumina stehen parallel zueinander, werden mit einem zentralen Laubengang in der Mitte erschlossen und rahmen jeweils einmal im Westen und einmal im Osten einen Nachbarschaftspark ein. So fügt sich der Komplex nahtlos in das Ensemble ein und bietet im Erdgeschoss Nutzungen, die den jeweiligen Außenanlagen und Nachbarfunktionen entsprechen. Das südliche Gebäude orientiert sich in der Erdgeschosszone auf das Wohnen; so sind dort Fahrradabstellplätze, Wohngemeinschaften, ein Waschsalon und Lagerräume vorgesehen.

Im nördlichen Baukörper befinden sich konsumfreie Zonen. So ist Richtung Westen der Nachbarschaftstreff angedacht, der eine Bar, einen überdachten Außenbereich, eine Spielecke für Kinder und eine Küche für die Gemeinschaft, Workshops oder das Kochen für den Kindergarten bietet. Im östlichen Teil des Baukörpers befindet sich ein „Lesewald“ mit Arbeitsplätzen, Aufenthaltsbereichen zum Lesen, ein kleines Kino in der Mitte für Filmabende und ein „Kost-nix-Laden“, in dem Kleidung, Alltagsgegenstände oder Gartengeräte getauscht oder ausgeborgt werden können.

Sommersemester 2025
Masterstudio
Kaden

zur Aufgabenstellung