REMSRIEGEL

Josephine Eva Klatt, Malte Lars Henningsen

Im Rahmen der Internationalen Bauausstellung 2027 StadtRegion Stuttgart (IBA‘27) entsteht in Schorndorf auf dem Gelände des ehemaligen Bauhofs ein nachhaltiges, gemischt genutztes Stadtquartier mit Modellcharakter. Der Entwurf ist Teil des übergeordneten Entwicklungskonzepts „Quartier der Generationen“ und versteht sich als prototypisches Gebäude für eine zukunftsgerichtete, gemeinschaftlich orientierte und ressourcenschonende Stadtentwicklung. Das Gebäude reagiert auf die stadträumliche Lage zwischen Remsufer und gewachsenem Siedlungskontext mit einem langgestreckten Baukörper von 95 Metern Länge, 13 Metern Breite und fünf Geschossen.

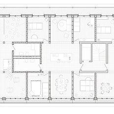
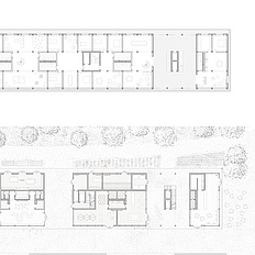
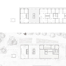
Im Erdgeschoss bilden öffentlich zugängliche Nutzungen wie ein Hofladen, Café, Friseursalon, Blumenladen sowie flexibel nutzbare Möglichkeitsräume eine offene, belebte Sockelzone. Sie dienen der Versorgung des Quartiers ebenso wie der sozialen Vernetzung und Durchwegung des Quartiers zur Rems, durch die durchlässigen Gebäudevolumen. Die darüberliegenden Geschosse sind dem Wohnen gewidmet. Studierendenwohnungen und Azubi-WGs im ersten und zweiten Obergeschoss, familiengerechte Wohnungen im dritten sowie gemeinschaftlich nutzbare Räume im vierten Obergeschoss schaffen ein vielfältiges Wohnangebot, das generationenübergreifend und sozial durchmischt funktioniert. Ergänzt wird das Angebot durch Arbeitsräume und kleinere Wohnungen an den Gebäudeenden.

Als Hybridkonstruktion aus einem hochwasserresilienten Stahlbetonsockel und einem darüber liegenden Holzskelettbau vermittelt der Entwurf zwischen Dauerhaftigkeit und Klimagerechtigkeit. Die Betonstruktur im Erdgeschoss bildet die robuste Basis für eine filigrane Holzkonstruktion, die durch vier aussteifende Betontreppenhäuser rhythmisiert wird. Die Decken bestehen aus verdübelten Brettstapelelementen; die nicht tragenden Wände folgen einem flexiblen Holzrahmenbauprinzip.Gemeinschaftlichkeit wird nicht nur programmatisch, sondern auch räumlich unterstützt: Gemeinschaftsgärten entlang des Remsweges, Dachgärten, großzügige Küchen und Aufenthaltsräume fördern eine Kultur des Teilens und der Begegnung. Die äußere Gestalt des Gebäudes unterstreicht diesen offenen Charakter. Eine vorvergraute, hinterlüftete Holzfassade prägt das äußere Erscheinungsbild. Eine vorgesetzte, leichte, rot lackierte Stahlstruktur mit Balkonen, Rankhilfen und durchlässigen Gittern schafft nutzbare Zwischenräume und ermöglicht Aneignung im Sinne eines lebendigen Stadtbalkons.
 

Sommersemester 2025
Masterstudio
Kaden

zur Aufgabenstellung