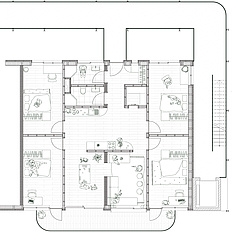
Bei dem vier geschossigen Gebäude wurde eine Aufteilung von acht durchgesteckten Wohnungen pro Geschoss gewählt. Bei zwei Wohnungstypen wurde die Wohnungstrennwand bewusst durchbrochen, wodurch anstelle von zwei kleineren Einheiten jeweils eine doppelt so große geschaffen wurde. Somit ergeben sich insgesamt 24 Wohneinheiten, die unterschiedliche Wohnsituationen zulassen. Dabei wurden vier barrierefreie Wohnungen mit jeweils drei Schlafzimmern geplant, die sowohl für Familien als auch für Wohngemeinschaften geeignet sind. Ebenso gibt es neben vier großen WGs für vier Personen noch acht Zweier-WGs, beide sind für Schüler:innen oder Studierende gedacht. Außerdem wurden acht Wohnungen geplant, die für Paare oder Einzelpersonen vorgesehen sind. Die großen Wohnungen für drei bis vier Personen wurden mit rund 116 m² geplant, während die kleineren Einheiten etwa 57 m² umfassen. Bei dem zweigeschossigen Gebäude wurden anstatt der Wohnungstrennwand die Decke durchbrochen, wodurch acht Maisonettwohnungen mit jeweils 98 m² entstanden sind. Diese bieten Platz für etwa 32 Personen und wurden vorrangig für Familien mit ein bis zwei Kindern konzipiert.
Trotz der grundsätzlich schlichten Holzschindelfassade wurde darauf geachtet, die Fassaden lebendig zu gestalten. Durch Elemente wie den Laubengang, großzügige Balkone und deren abgehängten Konstruktion sowie markante Sitzfenster wird eine abwechslungsreiche Fassadenstruktur geschaffen. Dabei wurde stets darauf geachtet, dass die Gestaltung der Fassade nicht auf Kosten der Wohnqualität erfolgt – die Fassadenentwicklung wurde konsequent aus den Grundrissen heraus gedacht.Konstruktiv wurde auf eine nachhaltige Holztafelbauweise gesetzt. Tragende Trennwände wurden aus massivem Brettschichtholz ausgeführt, ergänzt durch Decken in Brettstapelbauweise. Die Balkone sind über herausragende I-Träger abgehängt, welche auf dem Dach befestigt sind. Auf diese Weise wurde eine Bauweise gewählt, die sowohl ökologischen Anforderungen als auch einer hohen Wohnqualität gerecht wird.
Sommersemester 2025
Masterstudio
Kaden