Platz der Generationen

 

PLATZ DER GENERATIONEN

Müller Annalisa, Deetjen Louisa

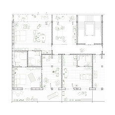
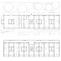
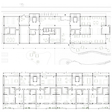
Ziel des Entwurfes ist es zwei Gebäude mit unterschiedlicher Funktion zu schaffen, die in ihrer Gestaltung und dem Konzept sichtbar zusammengehören. Zwischen den Baukörpern entsteht ein Platz der für die Öffentlichkeit zugänglich ist und durch Terrassen, einer Bibliothek, einer Kaffeebar und einem Mobility Hub zum Verweilen einlädt. Im Süden entstehen großzügige Grünräume die entweder gemeinschaftlich oder privat genutzt werden. Um die gewünschte Zusammengehörigkeit zu erzeugen, wurden die Fassaden nach den gleichen Prinzipien entwickelt. Der nördliche Laubengang im Ostgebäude wird beim Westgebäude demnach zur Balkonschicht im Süden. Das Gebäude im Westen wird durch zwei Kerne erschlossen, während das im Osten einem Laubengang besitzt. Beide Gebäude beinhalten unterschiedliche Wohnungsgrößen und basieren auf einer Funktionszone in der Mitte des Volumens. Das Betreute Wohnen zeichnet sind durch Begegnungszonen aus. Neben den dort befindlichen Gemeinschaftsküchen, werden die Bewohner*innen optional von der Cafeteria im Erdgeschoss versorgt. Dieses Konzept ermöglicht eine platzsparende Küchenausführung innerhalb der Wohnungen. Das Grundkonzept des Ostgebäudes beruht auf Schalträumen. Pro Etage gibt es 5 Räume welche beliebig zu den benachbarten Wohnungen dazu geschalten werden können. Die Wohnungen weisen somit eine hohe Flexibilität in Bezug auf Größe und Umnutzung auf. 
 

 

Sommersemester 2023/24
Masterstudio
Kaden, Gossak-Kowalski

zur Aufgabenstellung