LICHTENBERGER LAUBEN

 Christoph Bamberger, Gregor Wallner

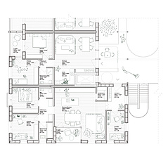
Das Projekt in der Waldowallee in Berlin-Lichtenberg umfasst zwei Gebäude, die im Rahmen einer Städtebaulichen Entwicklung auf einem von der HOWOGE erworbenen Grundstück entstehen sollen. Ziel des Entwurfs ist es, ein flexibles, ressourcenschonendes und zukunftsfähiges Wohn- und Arbeitsumfeld zu schaffen. Die Gebäude verbinden moderne Architektur mit nachhaltigen Bauweisen und fördern eine lebendige, soziale Durchmischung im Quartier.Das vordere Gebäude, welches sich direkt an der Waldowallee befindet, bietet im Erdgeschoss Platz für kleine Gewerbe und einen Coworking Space. Ein Kolonnadengang dient als Pufferzone zum Straßenraum und ermöglicht es den Gewerbetreibenden, ihre Verkaufsflächen nach außen zu erweitern. Der öffentliche Charakter wird durch die Betonbauweise im Erdgeschoss betont. Das hintere Gebäude beherbergt im Erdgeschoss Studiowohnungen, die durch eine Anhebung um 70 cm vom öffentlichen Raum getrennt sind. Laubengänge aus einer Stahlkonstruktion mit eingehängten Betonfertigteilen unterstreichen den hohen Vorfertigungsgrad. Jede Wohnung verfügt über eine eigene kleine Terrasse sowie Balkone oder Loggien. Die Wohnungen variieren in der Größe von 36 bis 102 Quadratmetern, um die soziale Durchmischung zu fördern. 
 

Sommersemester 2023/24
Masterstudio
Kaden, Gossak-Kowalski

zur Aufgabenstellung