Buntes Ensemble

 

BUNTES ENSEMBLE

Matweber Karla, Schabus Anna

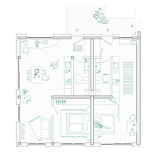
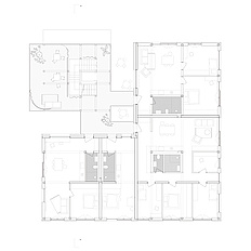
Die Gebäude zeichnen sich durch ihre Gemeinschaftlichkeit und Kommunikation untereinander aus. Sie ergänzen sich nicht nur in ihrer Komplimentärfarbe, sondern auch in den Nutzungsangeboten und der Funktionalität. Beim grünen Gebäude bietet der Treppenturm, der viel mehr ist als nur eine Erschließung, großzügige Fläche für gemeinsame Tischtennis Nachmittage mit den NachbarInnen, Yogastunden, Urban Gardening und vieles mehr. Das rote Hochhaus schafft mit den durchlaufenden Balkonbändern eine zusätzliche Pufferzone, die von den BewohnerInnen  je nach Bedarf benutzt wird. Dieser dient als Begegnungszone der BewohnerInnen.
Ein gemeinsames Ziel dieses Entwurfs ist, dass man das Miteinander fördert Gemeinsam weniger einsam sein. 
 

 

Sommersemester 2023/24
Masterstudio
Kaden, Gossak-Kowalski

zur Aufgabenstellung