DE
EN
image/svg+xml
Professur für
Architektur und Holzbau
WISSEN
TECHNIK
LEIDENSCHAFT
TUGraz Logo
Logo der TUGraz
IAT Holz
/
PORTFOLIO
Menü
PROFESSUR
LEHRE
Aktuelle Lehre
Seminar
Studio
Vorlesung
image/svg+xml
PORTFOLIO
DIPLOM
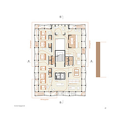
MODULAR LIVING LAB
David Schlegl, Ema Drnda, Stefanie Obermayer
Sommersemester 2021
Projektübung
Kaden, Gossak-Kowalski