VERWEBUNG

Fabio Bucolo, Paulo Raab

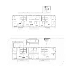
Der vorliegende architektonische Entwurf präsentiert ein Z-förmiges Gebäude, das die Verbindung eines Bestandsgebäudes mit zwei Neubauten und einer zweigeschossigen Aufstockung herstellt. Das Bestandsgebäude bildet den Ausgangspunkt und wird durch die beiden Neubauten ergänzt. Mit dem Schwerpunkt auf Holzbauweise stellt dieser Entwurf eine Kombination aus Skelettbauweise bei den Neubauten und einer Schottenbauweise aus Brettsperrholz bei den Aufstockungen dar. Ein wesentliches Gestaltungselement ist die Pufferzone in Form eines Laubengangs und Balkonbereichs, die alle Gebäudeteile miteinander verbindet und eine horizontale Betonung schafft. Die Pufferzone, die den Laubengang und den Balkonbereich umfasst, fungiert als verbindendes Element zwischen den verschiedenen Gebäudeteilen. Sie schafft nicht nur eine ästhetische Verbindung, sondern dient auch als Treffpunkt und Kommunikationsraum für die Bewohner. Der Laubengang ermöglicht einen fließenden Übergang zwischen den einzelnen Teilen des Gebäudes und schafft eine angenehme, offene Atmosphäre.

Sommersemester 2023
Masterstudio
Kaden, Gossak-Kowalski

zur Aufgabenstellung