DE
EN
image/svg+xml
Professur für
Architektur und Holzbau
WISSEN
TECHNIK
LEIDENSCHAFT
TUGraz Logo
Logo der TUGraz
IAT Holz
/
PORTFOLIO
Menü
PROFESSUR
LEHRE
Aktuelle Lehre
Seminar
Studio
Vorlesung
image/svg+xml
PORTFOLIO
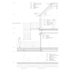
DIPLOM
BERLIN42
Pia Pollak, Theresa Hammerl
Sommersemester 22
Masterstudio
Kaden, Gossak-Kowalski
zur Aufgabenstellung
Alle Cookies akzeptieren
Präferenzen speichern
Cookie-Kategorien:
Funktionale
Analyse
Werbe
Wir verwenden Cookies, um Ihnen in Zukunft weiterhin das bestmögliche Service zur Verfügung stellen zu können. Nähere Informationen sowie Widerrufsmöglichkeiten finden Sie in der
Datenschutzerklärung
.