Breksler

 

Museumsplatz haid 
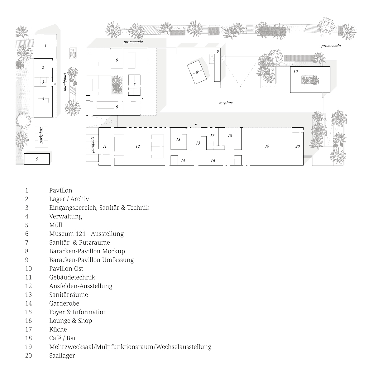
Museum 121 & Kulturzentrum

Manuel Breksler

 

 

Der Museumsbau stellt als wichtiger, öffentlicher Gebäudetypus eine besondere Herausforderung in der Planung dar. Eine Vielschichtigkeit in Nutzungen, Funktionen, als auch in architektonischen und organisatorischen Gebäudeanforderungen multiplizieren diese Komplexität nochmals. Ziel dieser Masterarbeit ist deshalb eine Erfassung und Analyse grundlegender und fundamentaler museologischer und museographischer Aspekte, um einen groben Überblick über die Funktionen und Planungsanforderungen zu geben. Auf Basis der dadurch gewonnen Informationen wurde versucht, anhand eines theoretischen Szenarios, ein Stadtgeschichtemuseum mit dazugehörigem Besucher*innenzentrum zu Entwerfen. Ersteres soll dabei als Möglichkeit dienen die geschichtliche Präsenz der, für die oberösterreichische Stadtgemeinde Ansfelden wichtigen, DP Siedlung 121 Haid aufzuzeigen. Die Arbeit setzt sich dabei aus vier Haupteilen zusammen, welche sich jeweils einem speziellen Thema widmen. Im ersten Teil werden die museologischen / museumstheoretischen Fragen wie Definitionen, Funktionen und die historische Entwicklung von Museen beleuchtet. In der zweiten Passage findet eine Aufschlüsselung von museographischen / museumsplanerischen Komponenten statt. Hier werden Planungsschritte- und problematiken, grundlegende Raum- Weg- und Präsentationskonzepte, architektonische Bestandteile eines Ausstellungsraumes und diverse Gebäudeanforderungen näher erörtert. Im dritten Teil wird eine Analyse des Ortes und des Planungsgrundstückes bereitgestellt und der vierte Abschnitt widmet sich hauptsächlich dem Entwurfsprojekt.

mehr ...